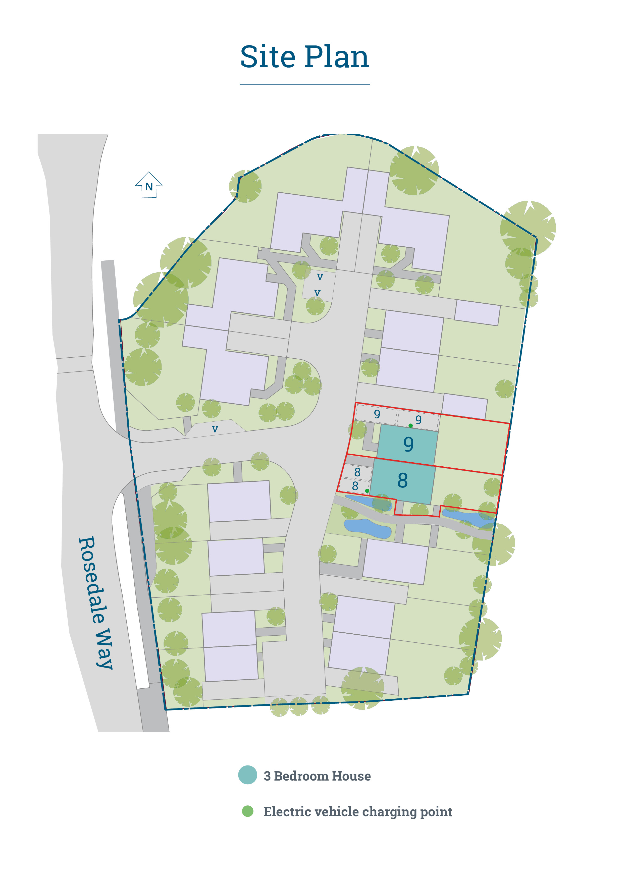
Address: Rosedale Way, Cheshunt, Hertfordshire

  • Type: House

  • Price: £275,000 for 50%

  • Rental Price: £687.50

  • Bedrooms: 3

  • Service Charge: 62.50

  • Purchase Type: Shared

Enquire Today

Hightown Homes will use the information you provide as part of this form to keep in touch with you about these new homes. By submitting this form you are giving your consent to be contacted via email/telephone. You can opt out from any future marketing communication at any time by emailing sales@hightownha.org.uk For more information on how we process your data please refer to our privacy notices on our website.
Property Features

Kitchen
• Contemporary fitted kitchen with worktops
• Integrated electric oven
• Integrated electric ceramic hob
• Stainless steel extractor hood
• Stainless steel splashback to hob
• Integrated washer dryer
• Integrated fridge/freezer
• 1 ½ bowl sink
• Karndean vinyl flooring

Interiors
• Double glazed UPVC windows
• Carpet to all living areas
• Smoke detector
• Air source heat pump heating system with under floor heating to ground floor & electric radiators to first floor

Cloakroom
• White sanitary ware
• Wall tiles as splashback to wash hand basin
• Karndean vinyl flooring

Bathroom
• White bathroom suite
• Chrome heated towel rail
• Glass shower screen
• Shower over bath
• Shaver socket
• Wall tiles to shower, bath & as splashback to wash hand basin
• Karndean vinyl flooring

Exteriors
• Patio area
• Turf to rear garden
• Shed
• 2 allocated parking spaces
• EV charging point
• 990 year lease
• Build Zone warranty

Local Amenities

Cheshunt delivers a lifestyle that feels both convenient and family friendly. The town has a thriving retail scene, from high street favourites at Brookfield Shopping Park to independent cafés, restaurants, and pubs. Families can also enjoy days out at Cedars Park, with its gardens, maze, and play areas, or head to Cheshunt Park for picnics, sports facilities, and wide-open green space. Add the Lee Valley Regional Park nearby, and there’s always somewhere to explore.

Cheshunt is home to well-regarded schools such as Goffs Academy and Fairfields Primary School. The town’s strong community spirit is reflected in local events, clubs, and activities that bring residents together, creating a friendly atmosphere that’s ideal for young families and new homeowners. With such a wide variety of amenities, Cheshunt offers the perfect place to put down roots and enjoy your first home.

Cheshunt is exceptionally well connected, making travel easy and stress-free. By train, Cheshunt Station offers fast train services to London Liverpool Street in around 25 minutes, while Theobalds Grove on the Weaver Line links you to the London Overground. Local bus routes connect surrounding towns and villages, adding everyday convenience. For drivers, the nearby A10 and M25 provide quick road access across Hertfordshire and into London. Together, these options make commuting and weekend trips easy for residents.

We take every care to ensure that the correct information is given and we hope you find it useful, however complete accuracy is not guaranteed and the information is expressly excluded from any contract. Design and layout details are subject to Local Authority approval and all room sizes are approximate dimensions. We would like to point out that the computer-generated images, floor plans, sizes, specification and any other layouts are for guidance only.